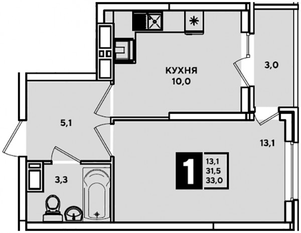
Продаётся 1 комн. квартира в новостройке за 4 686 000 рублей. Краснодар, № 20894
33 кв.м., 1 комн. квартира в новостройке
4 686 000 рублей
142 000 рублей за кв.м.
- Краснодар
- Дмитрия Есаулко
- ЖК Самолет
- 16 этаж, Монолит
- 33/13/10
- Предчистовая
- Ипотека
Продам отличную 1 комнатную квартиру в готовом доме, расположенную в престижном современном жилом комплексе, все инфраструктура расположена в пределах шаговой доступности, школы, сады, паркинг, скейт парк, современные детские и спортивные площадки, состоятельные, интеллигентные соседи, видеонаблюдение, хорошая транспортная доступность, самый востребованный район.








