Продаётся 2 комн. квартира в новостройке за 9 485 600 рублей. Краснодар, № 18582
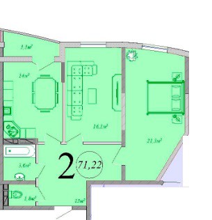
71 кв.м., 2 комн. квартира в новостройке
9 485 600 рублей
133 600 рублей за кв.м.
- Краснодар
- улица Вишняковой
- ЖК Радонеж
- 10 этаж, Монолит
- 71/37/14
- Стяжка-штукатурка
- Без комиссии
- Ипотека
Продам 2х ком. квартиру в микрорайоне Черемушки , в новом, строящемся доме.
Площадь квартиры 71,22 квадратных метров ( лоджия 3,3м2 с кухни) .
Предчистовая отделка , отличные видовые характеристики квартиры .
Проходит ипотека по господдержке.
Дом расположен на берегу реки , парковая территория , чистый воздух и отсутствие городской суеты , при этом находясь в 10 минутах езды от центральной улицы города.
Преимущества квартиры :
Просторная планировка
Раздельный санузел
Просторная лоджия
Парковая территория
Берег реки , чистый воздух и отличные видовые характеристики
Удобная и развитая транспортная и социальная инфраструктура
Подземная парковка (при покупке 2-комнатной или 3 к квартиры-скидка на паркинг)
Детский сад на территории жилого комплекса
Развитый микрорайон , выезд на основные улицы- Ставропольскую , Адыгейскую набережную , Старокубанскую . Удобный выезд во все части города в Центр города








