Продаётся 2 комн. квартира в новостройке за 6 480 000 рублей. Краснодар, № 18120
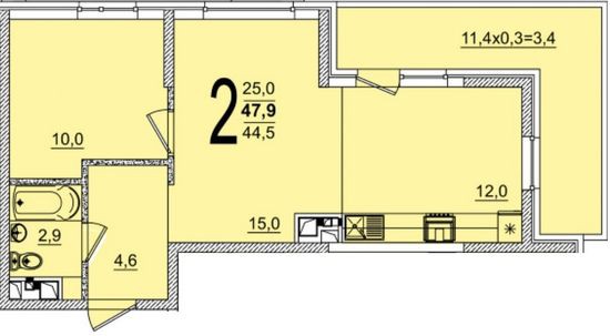
48 кв.м., 2 комн. квартира в новостройке
6 480 000 рублей
135 000 рублей за кв.м.
- Краснодар
- улица Ближний Западный обход
- ЖК Грани
- 13 этаж, М/к
- 48/10/27
- Предчистовая
- Без комиссии
- Военная ипотека
- Ипотека
Необычная планировка. Евро 2 к.квартира. Шикарная кухня гостиная 27 кв.метров. Целая студия плюс еще комната! Огромная лоджия 11,4 кв.м. Есть место для ваших фантазий.
Сдача дома 4 квартал 2021 года.
Переуступка.
На территории расположены все объекты инфраструктуры, чтобы вам было комфортно: детские площадки, паркинги, спортивные зоны. Входная группа представляет собой коммерческие помещения, где разместятся гипермаркеты, аптеки, салоны красоты, кофейни и магазины. Жилой комплекс расположен на улице Западный обход. Рядом магазин «Лента», торговый центр «Западный» и «Семейный Магнит». В 10-15 минутах езды детский сад, школа, больницы, развлекательный центр «Парк Европа», Ботанический сад. До центра Краснодара – 20 минут, столько же до ТРЦ «Красная площадь».







