Продаётся 2 комн. квартира в новостройке за 6 065 800 рублей. Краснодар, № 15139
52 кв.м., 2 комн. квартира в новостройке
6 065 800 рублей
116 650 рублей за кв.м.
- Краснодар
- улица -я Трудовая
- ЖК Зеленодар
- 12 этаж, Монолит
- 52/31/6
- Стяжка-штукатурка
- Без комиссии
- Ипотека
- Для выгодной сдачи
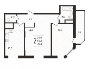
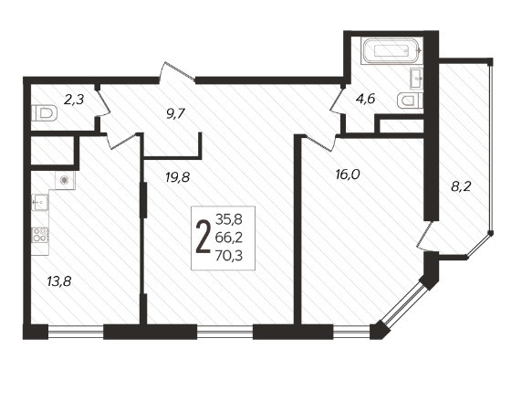
Продам большую 2 х квартиру 70.3м2 в новом доме. Кухня 13,8 м2. Два санузла.
Дом монолитный. Отделка: стяжка-штукатурка, или по желанию с ремонтом под ключ.
Ипотека, мат.капитал, рассрочка - ДА!!
На территории комплекса расположились детские и спортивные площадки, зоны для отдыха, обширная гостевая автостоянка и озеленение, путем посадки газонной травы, деревьев и кустарников. Планируется возведение спортивного комплекса, бассейна и различных кафе. В шаговой доступности находятся образовательные и медицинские учреждения, магазины и школы.








