Продаётся 4 комн. квартира в новостройке за 43 543 800 рублей. Краснодар, № 11854
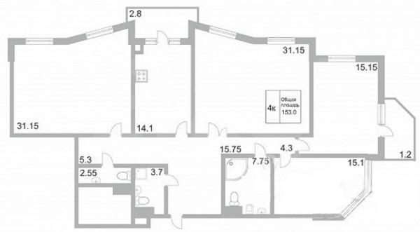
153 кв.м., 4 комн. квартира в новостройке
43 543 800 рублей
284 600 рублей за кв.м.
- Краснодар
- строение 5 улица Московская
- ЖК Ривьера
- 2 этаж, М/к
- 153/95/16
- Предчистовая
- Без комиссии
Продам 4к.кв в жилом комплексе, расположенном рядом с Чистяковской рощей. Его территория имеет непосредственный выход в парк.
В квартире выполнена качественная пред-чистовая отделка, оборудована система центрального кондиционирования воздуха, установлены индивидуальные регулируемые внутренние блоки (фанкойлы). Витражи балконов и лоджий выполнены из алюминиевого профиля, что обеспечивает отличную шумоизоляцию.
В подъездах установлены 3 скоростных лифта KONE.
Система видеонаблюдения контролирует внешнюю прилегающую территорию, дворовую территорию и паркинг. В холле комплекса расположена служба reception. Которая контролирует не только доступ в жилую часть, но и предоставляет отличный гостиничный сервис и выполняет поручения жителей комплекса.
Эксплуатируемая терраса на крыше.
Многоуровневая подземная парковка.Данный район очень развит и не нуждается в рекламе.
Есть все необходимое,для комфортного проживания.
Рядом супермаркеты: Табрис,Магнит, Лента, школы и детсады.
Три медицинских учреждения.
Выставочный центр,МФЦ.
Удобная транспортная развязка.
Две минуты ходьбы до остановки общественного транспорта: трамваи,маршрутки и автобусы.













