Продаётся 3 комн. дом за 9 999 990 рублей. Краснодар, № 44849
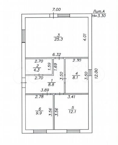
84 кв.м., 3 комн. дом
9 999 990 рублей
119 048 рублей за кв.м.
- Краснодар
- Курчанская ул
- 1 этаж, Кирпич
- 84/71/9
- Жилое состояние
- Военная ипотека
- Ипотека
Продажа дома Количество комнат - 3, общая площадь - 84 кв.м. , количество этажей - 1 В доме Жилое состояние.










