Продаётся 3 комн. квартира за 11 500 000 рублей. Краснодар, № 34158
11 500 000 рублей
151 316 рублей за кв.м.
3 комн. квартира
- Краснодар
- Новороссийская ул
- 18 этаж / 24 этажей, М/к
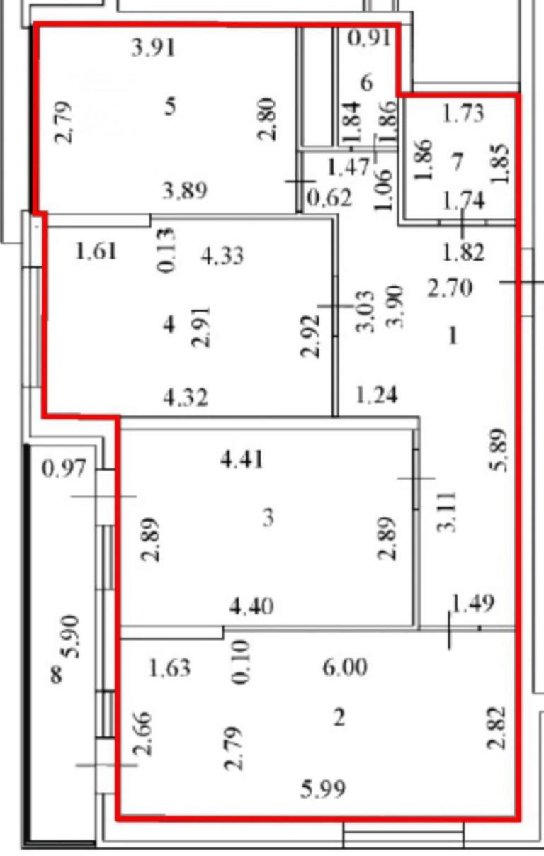
- 76/42/13
- Ремонт
- Военная ипотека
Ипотека от 3%
Продажа квартиры Краснодарский край Краснодар г ЧМР (Ставропольская ул.) Новороссийская ул. Количество комнат - 3, общая площадь - 76 кв.м., жилая площадь - 42 кв.м., площадь кухни - 13 кв.м. на 18 этаже 24 этажного дома. В квартире Ремонт.





