Продаётся 2 комн. квартира за 5 250 000 рублей. Краснодар, № 34131
5 250 000 рублей
103 755 рублей за кв.м.
2 комн. квартира
- Краснодар
- Генерала Корнилова ул
- ЖК Облака
- 6 этаж / 9 этажей, М/к
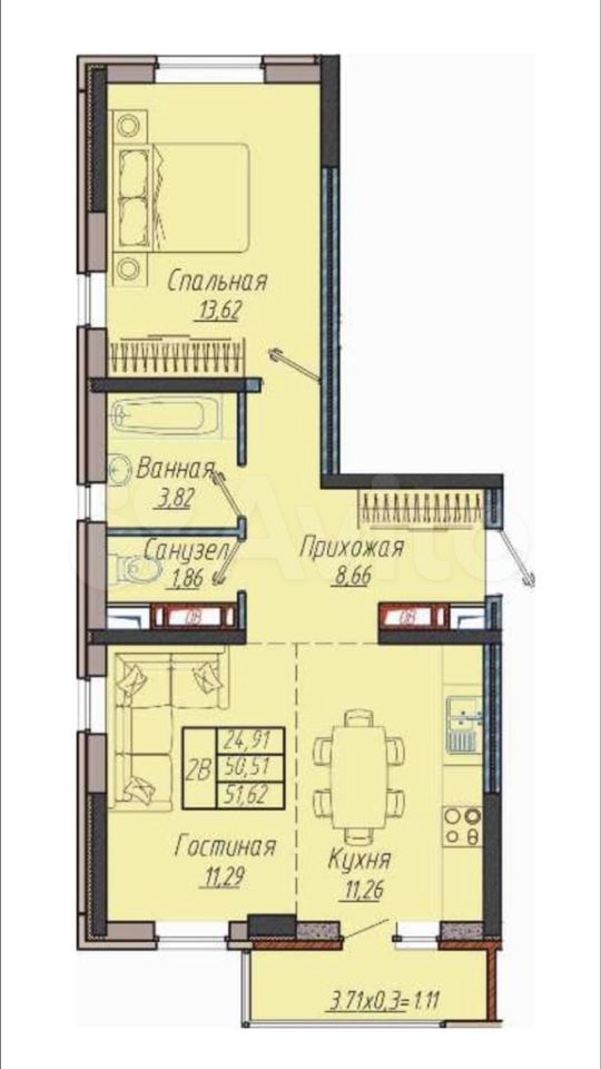
- 50/25/12
- Предчистовая
- Без комиссии
- Военная ипотека
Ипотека от 3%
Продажа квартиры Краснодарский край Краснодар г Западный обход Западный город Облака ЖК Генерала Корнилова ул. Количество комнат - 2, общая площадь - 50 кв.м., жилая площадь - 25 кв.м., площадь кухни - 12 кв.м. на 6 этаже 9 этажного дома. В квартире Предчистовая. Мы считаем основными преимуществами ЖК Облака:
Во-первых, расположение комплекса — современный, экологически чистый район, недалеко от центра города.
Во-вторых, выбор планировочных решений. Застройщик побеспокоился о разных предпочтениях и финансовых возможностях будущих покупателей и сделал очень широкой линейку выбора планировок квартир и их площадей. Здесь каждый сможет найти то, что будет максимально уютно и подходяще для кошелька. Покупатели могут выбрать студию, одно-, двух-, или трехкомнатную квартиру, есть варианты планировок евроформата.
В-третьих, надежность компании-застройщика несомненна и подтверждена хорошей репутацией и многолетней работой.
В-четвертых, метод строительства позволяет проводить по желанию перепланировку и предчистовая отделка отличного качества оставляют простор для творчества и дизайна в подготовке квартиры к заселению.
В-пятых, приятным дополнением является продуманный паркинг, как гостевой, так и подземный.. Сроки сдачи всего комплекса: сдан, высота потолков: 2.90, класс дома: Комфорт.






