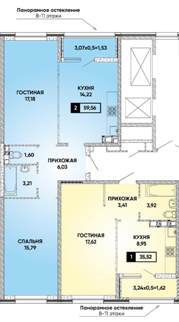
Продаётся 2 комн. квартира в новостройке за 8 500 000 рублей. город Краснодар, № 25774
59 кв.м., 2 комн. квартира в новостройке
8 500 000 рублей
144 067 рублей за кв.м.
- город Краснодар
- Краснодар
- ЖК Клубный квартал Архитектор
- 18 этаж, Монолит
- 59/32/14
- Предчистовая
- Ипотека
В продаже 2 ком квартира 57,7 м 2 в новом, монолитном доме.
Дом сдан.
18 видовой этаж, панорамное остекление.
ПЧО.
Шикарный жилой комплекс , дом класса комфорт плюс.
Закрытый двор, система умный дом. Подземный паркинг.
Школа, детский сад. Магазины, пункты доставки с маркетплейсов.
Рядом находится спортивный комплекс Баскет- холл.
ТРЦ Красная площадь в шаговой доступности.
Есть обременение.








