Продаётся 6 комн. дом за 20 239 302 рублей. Краснодар, № 24003
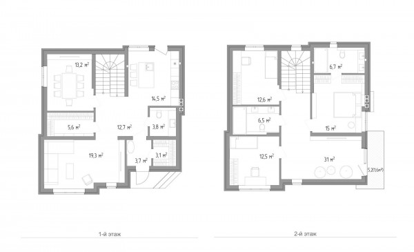
165.9 кв.м., 6 комн. дом
20 239 302 рублей
121 997 рублей за кв.м.
- Краснодар
- -й Сахалинский проспект
- КП Аристократ
- 2 этаж, Кирпич
- 165.9/77/15
- Предчистовая
- Без комиссии
- Ипотека
Новый дом в коттеджном поселке закрытого типа. Построен полностью из керамического кирпича, качественная отделка " White box", все центральные коммуникации. Возможна любая ипотека. 6 соток земли ИЖС.












