Продаётся 2 комн. дом за 4 777 500 рублей. Копанской, № 21425
62 кв.м., 2 комн. дом
4 777 500 рублей
77 056 рублей за кв.м.
- Копанской
- улица Березовая
- 1 этаж, Кирпич
- 62/27/22
- Предчистовая
- Без комиссии
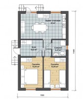
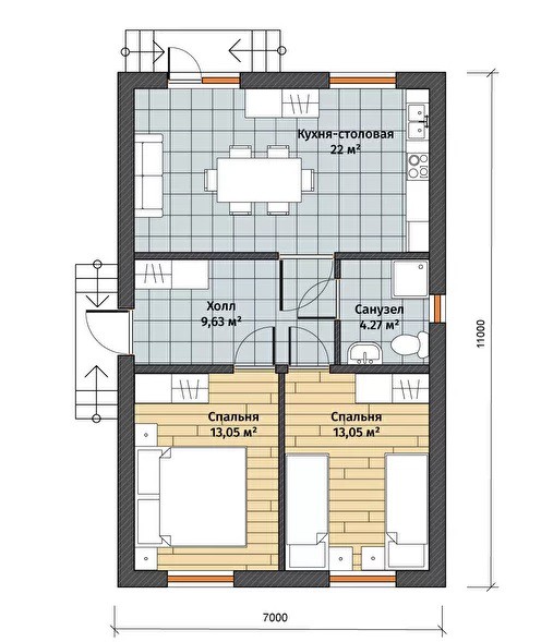
Продам уютный домик, из газоблока, площадью 62м2. Размер 7 х 11. Земельный участок 3.3 сотки.
Удобная планировка - большая кухня-столовая 22,0 м2, две спальни ( 13,05 + 13,5), холл 9,63 м2, санузел 4,27м2.
Свайно-ростверковый фундамент, стены - облицовка керамический кирпич, кровля - металлочерепица.
Коммуникации: электроразводка ( 30 точек по дому), скважина, водоотведение, выход под сантехнику.
Теплый пол (кухня, коридор, санузел) со стяжкой пола.
Штукатурка: предчистовая, под поклейку обоев.
Парковка: отсыпная щебнем
Бетонная отмостка вокруг дома
Огороженный участок с откатными воротами, калиткой
Радиаторы отопления, газовый или электрокотел на выбор.
Высокий конек плюс 120 000 ( входит в цену).








