Продаётся 2 комн. квартира в новостройке за 8 960 000 рублей. Краснодар, № 19917
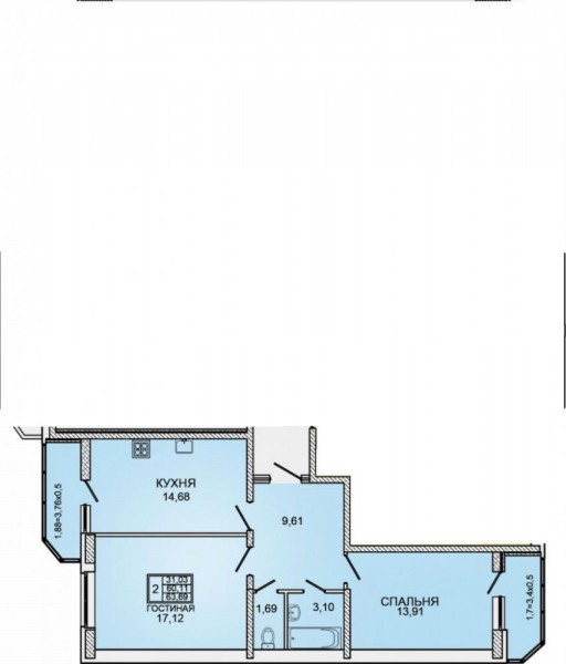
64 кв.м., 2 комн. квартира в новостройке
8 960 000 рублей
140 000 рублей за кв.м.
- Краснодар
- улица им.Героя Яцкова И.В
- ЖК Губернский
- 14 этаж, М/к
- 64/35/12
- Предчистовая
- Ипотека
- Подходит под сертификат
Продам 2-х комнатную квартиру в мкр. Губернский. Качественная предчистовая отделка.Удобная планировка бабочка с большим коридором, двумя лоджиями.Удачное расположение дома -вид на центральную аллею и фонтан, а также на город.













