ЖК Вершины (п. Яблоновский, Тургеневское шоссе)
ЖК Вершины от застройщика Смена group
Внутренняя отделка и стадии готовности ЖК Вершины
Подробная информация о районе Адыгея: медицина, образование, транспорт, инфраструктура
Описание ЖК Вершины от застройщика
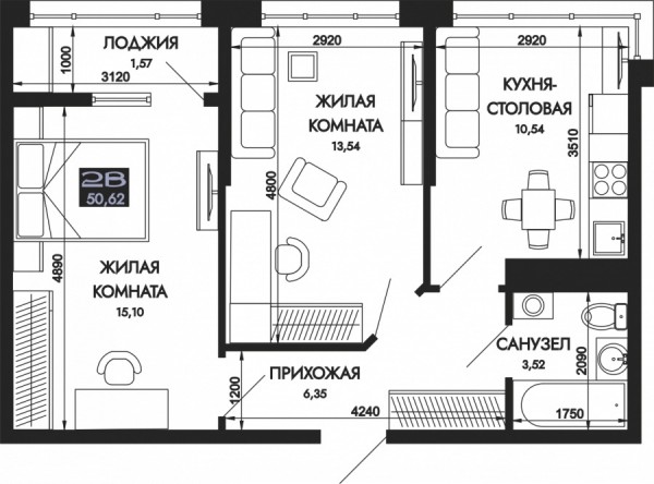
ЖК "Вершины" - это жилой комплекс, расположенный в поселке Яблоновский, в непосредственной близости от Краснодара. Застройщиком является ГК "Смена". Комплекс предлагает квартиры от 20 до 55,5 квадратных метров, построенные по ФЗ-214 с использованием эскроу-счетов. В ЖК "Вершины" предусмотрены закрытый двор, дизайнерские входные группы, детский сад, школа и спортивный клуб, а также коммерческие помещения.
Инфраструктура: Закрытый двор, детский сад, школа, спортивный клуб, коммерческие помещения. На территории комплекса будет муниципальный детский сад, а через дорогу расположена действующая средняя школа № 28
Доступность: Удобный выезд на транспортные артерии, обеспечивающие доступ к Краснодару.
ЖК "Вершины" позиционируется как комплекс, сочетающий комфорт городской жизни с уютом загородной атмосферы.
Просторная территория длиной 400 метров идеально подходит для пробежек и вечерних прогулок. Для семей с детьми проектом предусмотрен муниципальный детский сад, а в двух шагах от комплекса находится уже действующая школа. Здесь современная жизнь гармонично сочетается с природой, создавая идеальные условия для тех, кто ценит уют и комфорт.
Просторные гостиные предоставляют достаточно места для комфортного времяпрепровождения с друзьями, а уютная кухня-столовая станет идеальным местом для семейных ужинов и общения. Обилие панорамных окон и увеличенные оконные проёмы создают атмосферу лёгкости и воздушности в каждой квартире.
Все квартиры сдаются с качественной предчистовой отделкой: ровная стяжка пола, стены оштукатурены. Интерьеры холлов продуманы дизайнерами: керамогранит, декоративная штукатурка, зеркала в пол. Подъезды оборудованы бесшумными лифтами.
Семейная ипотека от 6% на весь срок
Льготная ипотека
для IT-специалистов
Рассрочка 0% до конца строительства
Материнский капитал Может послужить как первым взносом, так и стать способом полного погашения.
Отзывы о ЖК Вершины
Марина З.
Понравилась идея закрытого двора: дети гуляют спокойно, а машин нет — это очень важно для нас. Удобно, что школа и детский сад в шаговой доступности, а до Краснодара можно быстро добраться на машине.
Денис П.
Пересмотрел много новостроек, остановился на ЖК «Вершины» из-за хороших планировок и большого количества света в квартире. Огромные окна — это супер, в комнатах очень светло и уютно.
Юлия А.
Только купили квартиру — оформили семейную ипотеку на выгодных условиях. Сам комплекс очень понравился по инфраструктуре: и спортзал, и коммерческие точки, и даже зона для прогулок на территории. Советую семьям с детьми.
Виталий К.
Стройка идёт по графику, застройщик на связи. Холлы просторные, хорошие лифты, заметно, что всё делается с упором на качество для людей.
Олеся Б.
Очень довольны расположением: тихий район, много зелени вокруг, а до работы в Краснодаре реально доехать за 10-15 минут. Планируем обустроиться здесь надолго!
© 2026 Агентство недвижимости Good rielt и Академия Гуд-риелт в Краснодаре
Go Top






Комментарий специалиста о ЖК Вершины
ЖК «Вершины» — это современный жилой комплекс в п. Яблоновский, проект которого ориентирован на максимальный комфорт жильцов и гармоничное сочетание городской инфраструктуры с атмосферой уютного пригорода. Комплекс возводится надёжным застройщиком ГК «Смена» с использованием современных технологий и качественных строительных материалов, что гарантирует долговечность и повышенный уровень безопасности (сейсмостойкость 8 баллов).
Проект впечатляет широкой инфраструктурой: на территории предусмотрены закрытый двор без машин, муниципальный детский сад, школа, спортивный клуб, а также коммерческие помещения на первых этажах для вашего удобства. Через дорогу находится уже действующая школа, что особенно актуально для семей с детьми. Просторная территория комплекса протяженностью 400 метров идеально подойдёт для вечерних прогулок, пробежек и отдыха всей семьи на свежем воздухе.
Застройщик позаботился не только о спокойствии, но и о высоком уровне эстетики: входные группы и холлы оформлены по индивидуальному дизайн-проекту с использованием керамогранита, декоративной штукатурки и панорамных зеркал — решение, которое добавляет статус и уют общим пространствам. В каждой квартире установлены увеличенные оконные проёмы и панорамные окна, за счёт чего все помещения наполнены естественным светом, а продуманные планировки обеспечивают ощущение простора даже в квартирах с небольшой площадью.
Все квартиры сдаются с качественной предчистовой отделкой, что позволяет новосёлам реализовать индивидуальный дизайн-проект без лишних хлопот и затрат времени на базовые ремонтные работы. Комплекс отличает выгодное расположение — удобный выезд на центральные транспортные артерии обеспечивает быструю связь с Краснодаром, а значит, вы одновременно получаете преимущества собственной инфраструктуры и близости к урбанистической жизни большого города.
Современные предложения по ипотекам (есть семейная и IT-ипотека), а также рассрочка под 0% делают покупку квартиры максимально доступной и удобной практически для каждой семьи. ЖК «Вершины» — достойный выбор для тех, кто предпочитает безопасную, комфортную и качественную жизнь без компромиссов.